Appartamento Mansarda Uccelliera Abetone Mq 90 Quadri-Locale Primo Piano
Descrizione
Vendita € 240.000 Appartamento Mansarda Uccelliera Abetone Mq 90 Quadri-Locale Due Livelli Primo Piano Caminetto
Agenziacioni.com Real Estate propone in vendita un Immobile Caratteristico,
Appartamento Abetone Uccelliera Mansarda 4 Vani Mq 90,
Mansarda attrezzata con Due bagni;
Prezzo di Vendita Euro 240.000 Trattabile.
Caratteristiche Generali dell'Appartamento Mansarda Uccelliera
Appartamento Abetone Uccelliera Mansarda 4 Vani Mq 90
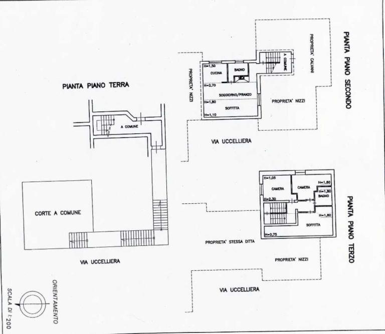
ubicato al Piano Terzo, di una piccola Palazzina,
composta di 6 Unità Immobiliari;
Il Piccolo Condominio è affacciato sulle Piste da sci di
Abetone
,
oltre ad essere attrezzato con ampio Parcheggio Scoperto,
con posti auto assegnati;
Posizione dell'Appartamento Mansarda Uccelliera
Appartamento ubicato nella prima parte di Via Uccelliera,
a 500 metri dal Centro e dalle Piste da Sci di Abetone.com.
Sviluppo Interno dell'Appartamento Mansarda Uccelliera
Appartamento Abetone Uccelliera Mansarda 4 Vani Mq 90
sviluppato su due livelli e su due lati, ed è composto di:
Ingresso Condominiale da scale esterne scoperte
Scala interna, attrezzata con piccoli ripostigli assegnati
Zona Giorno della Mansarda:
Ingresso appartamento,
dal quale si snodano due disimpegni, a destra ed a sinistra,
dai quali si raggiungono rispettivamente la zona giorno e la zona notte
Soggiorno ampio e luminoso,
grazie alle Due Finestre Velux inserite nel Solaio,
e ad una terza finestra laterale
Soggiorno attrezzato con camino artigianale con finiture in Pietra e Legno
Il Soggiorno è arredato con Tre Divani Letto Matrimoniali
Bagno con finestra attrezzato con Doccia e Lavatrice
Ampia zona pranzo arredata con tavolo fratina
Cucina Tinello con finestra,
con angolo cottura completamente attrezzato;
Zona Giorno interamente pavimentata con Parquet
Zona Notte della Mansarda:
Sul lato sinistro dell'ingresso si accede alla zona notte,
tramite pochi gradini della scala interna,
pavimentata con parquet, cosi come tutta al zona notte
Disimpegno arredato con piccolo guardaroba
Camera Matrimoniale da tre posti letto,
arredata con Letto matrimoniale e Letto singolo
Ulteriori Due Camere Matrimoniali
Bagno con Finestra Velux attrezzato con doccia
Zona Notte pavimentata con Parquet
Appartamento arredato in stile, con Gusto, con ottime finiture;
Climatizzazione della Mansarda
Appartamento Quattro Vani dotato di Impianto di Riscaldamento Autonomo,
realizzato con Termoconvettori a Gas GPL,
posti in ogni stanza della casa;
L'Acqua Calda Sanitaria viene Prodotta tramite un Boiler Elettrico,
da 80 Litri, installato nel Bagno.
Locali Accessori della Mansarda
Appartamento dotato di Posto auto scoperto assegnato,
oltre ad un locale ripostiglio ubicato al Piano Terra;
Gestione Quota Spese di Condominio della Mansarda
Le Spese di Condominio sono contenute,
date le piccole dimensioni ed il ridotto numero di appartamenti,
sono quantificate per un importo di € 500 Annui.


