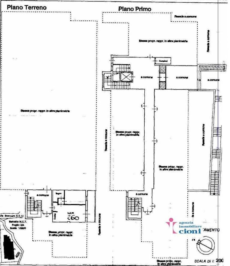
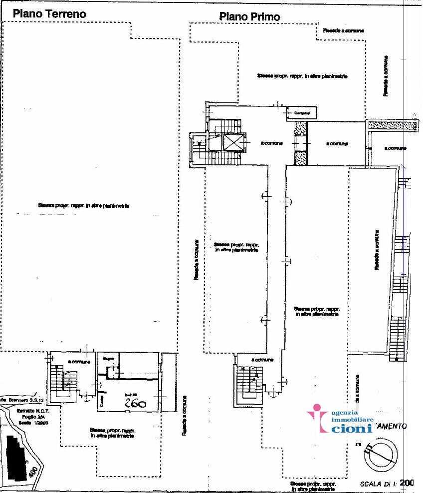
Bilocale Faidello Pulicchio Abetone Mq 55 P. T. Nuda Propr.
Descrizione
Vendita Bilocale Nuda Proprietà Faidello Pulicchio Abetone Mq 55 Piano Terra Terrazzo Posto Auto Fronte Pista.
Agenziacioni.com propone in Vendita un Appartamento di Due Locali,
ubicato di Fronte alla Partenza della Pista da Sci del Pulicchio,
Appartamento Bilocale Nuda Proprietà Faidello Pulicchio Abetone Mq 55 Piano Terra Terrazzo Posto Auto Fronte Pista.
Prezzo di Vendita Euro 109.000 Trattabile.
Posizione del Bilocale Faidello Pulicchio
L'Appartamento Bilocale Faidello Mq 55 Piano Terra Nuda Proprietà,
è ubicato di fronte alla Piste da Sci del Pulicchio,
raggiungibili comodamente a piedi;
Di fronte all'ingresso del Condominio, ed all'Appartamento Bilocale Nuda Proprietà,
si trova un comodo sentiero, lungo pochi metri,
che conduce direttamente alla partenza della Pista da Sci del Pulicchio,
posizione particolarmente interessante per essere utilizzato da Sciatori e sportivi,
amanti della posizione e della comodità di uscire di Casa con gli sci ai piedi,
con la possibilità di essere a contatto diretto con il verde dei Prati e dei Boschi limitrofi.
La Pista da Sci del Pulicchio ed il suo impianto di Risalita,
sono collegati con tutto il comprensorio di Piste di
Abetone.com
La Località di Faidello si trova a circa 1 km dal centro di Abetone,
e a 4 km dalla Località di Fiumalbo, e dal suo Caratteristico Borgo.
Sviluppo Interno del Bilocale Nuda Proprietà Faidello Pulicchio.
L'Appartamento Bilocale Faidello Pulicchio Mq 55 Nuda Proprietà,
è composto da:
accesso all'Appartamento dal Piano Terra,
sia dal Vano Garage condominiale (dal posto auto Coperto),
sia dall'ingresso condominiale del piano terra
Ingresso nel disimpegno,
attrezzato con armadio a tre sportelli,
utilizzato come guardaroba
Sala attrezzata con Stufa a Legno,
con la predisposizione per l'installazione di un Caminetto
La Sala è Arredata con un Divano letto matrimoniale
Zona Pranzo arredata con tavolo ripiegabile,
che può ospitare fino a Sei Posti
Terrazzo collegato alla Sala con affaccio sulle piste da Sci del Pulicchio.
e sulla vallata del Monte Cimone
Cucinotto con Angolo Cottura completamente attrezzato
Disimpegno zona notte
Camera Matrimoniale arredata con Latto a Castello Matrimoniale,
con armadio Quattro Stagioni
Bagno attrezzato con Doccia
Climatizzazione del Bilocale Pulicchio Faidello
L'appartamento Bilocale è dotato di Impianto di Riscaldamento Autonomo,
realizzato con una Caldaia Alimentata con Gas GPL,
con la funzione della produzione della Acqua Calda Sanitaria.
La Caldaia a Gas GPL è installata nella Sala, vicino alla Porta Terrazzo.
La Temperatura interna del Bilocale Pulicchio Faidello,
viene regolata tramite il Termostato Ambiente,
gestibile an che da Remoto, tramite la App (iOS, Android),
fornita dal produttore.
una ulteriore fonte di calore è data dalla presenza di una stufa a legna,
installata nella Sala,
in alternativa, la Stufa a legna può essere sostituita,
utilizzando la canna fumaria esistente,
con una Stufa a Pellet, od un Caminetto;
Locali Accessori del Bilocale Faidello Pulicchio
L' Appartamento Bilocale Pulicchio Faidello Mq 55 Nuda Proprietà,
è corredato di:
Posto Auto coperto assegnato,
all'interno di un ampio Locale Garage Condominiale,
protetto con portone automatico motorizzato di accesso, con telecomando
Un Ripostiglio ad Uso Comune ubicato al Piano Seminterrato,
vicino all'ingresso condominiale,
attrezzato con Ripostigli assegnati
Gestione Spese Condominiali del Bilocale Pulicchio.
Le Spese di Condominio Annue dell’Appartamento Bilocale Pulicchio Faidello MQ 55 Nuda proprietà
sono quantificate mediamente per un importo di Euro 800.
Le spese di condominio comprendono le seguenti voci:
Pulizia scale interne ed esterne
Spalatura neve
Illuminazione interna ed esterna
Amministrazione Condominiale
Salva
Salva


