€ 159.000

Mansarda Trilocale Bar Alpino Fiumalbo Mq 70 Due Livelli Terrazzo Due Garage

Fiumalbo, Abetone, MO
70 m² 1 bagno 2 camere
Mansarda Vendita Fiumalbo Abetone IM-2026-00517 Rif: 3009

Descrizione

Vendita € 159.000 Mansarda Trilocale Bar Alpino Fiumalbo Mq 70 Due Livelli Terrazzo Due Garage

Agenziacioni.com propone in Vendita un Appartamento dotato di Ingresso indipendente,

Una Mansarda con ingresso indipendente,

ubicata al Secondo Piano e Sotto-Tetto Abitabile,

sviluppata su Due Livelli,

inserita in un elegante condominio composto di Sedici Unità Immobiliari,

Sviluppato su Tre Piani Fuori Terra, oltre al Piano Seminterrato dove si trovano oi Garage,

Mansarda Trilocale Bar Alpino Fiumalbo Mq 70 Due Livelli Terrazzo Due Garage.

Prezzo di Vendita Euro 159.000 Trattabile.

Link Video Youtube N°2:

Posizione della Mansarda Trilocale Bar Alpino

La Mansarda Bar Alpino Trilocale Mq 70,

è ubicata a 900 metri dal

Centro

e dalle Piste da Sci di

Abetone

;

La Via Bar Alpino è ubicata nel Territorio del Comune di Fiumalbo,

ed è il prolungamento della Via Uccelliera (ubicata a confine nel Comune di Abetone).

Le Due strade sono a cavallo del Confine

tra Toscana ed Emilia Romagna,

e grazie alla sua posizione geografica,

nonostante sia posizionata nel Comune di Fiumalbo,

tale posizione la rende molto vicina, circa 900 Metri,

al Centro ed alle Piste da Sci di

Abetone

.

Caratteristiche Generali della Mansarda Trilocale Bar Alpino

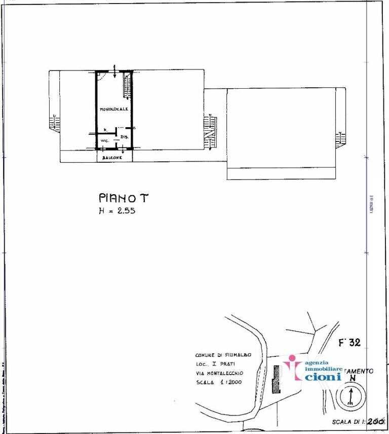
La Mansarda Trilocale è sviluppata su due Livelli,

ed è posta al Secondo Piano e Sotto-Tetto abitabile.

La Mansarda Bar Alpino Trilocale Mq 70,

e le altre Unità Immobiliari che compongono il Condominio,

sono tutti dotati di ingresso indipendente,

alla quale si accede tramite scale coperte,

che conducono ai rispettivi terrazzi di accesso,

sviluppati ai vari piani.

Il Condominio è corredato di un ampia area verde,

utilizzata come Giardino,

sviluppato sul lato principale del fabbricato,

dal quale si accede alle Scale Condominiali coperte,

che conducono agli appartamenti;

Alle Scale Condominiali ed alla Mansarda Bar Alpino Trilocale Mq 70,

si accede tramite il Vialetto di Accesso Pedonale,

sviluppato lungo due lati del Fabbricato.

Sviluppo Interno della Mansarda Trilocale

La Mansarda Trilocale Mq 70 è composta da:

Al Secondo Piano:

Accesso indipendente al Piano secondo,

da scale esterne coperte

Ingresso

Disimpegno con piccolo Guardaroba

Soggiorno arredato con divano letto matrimoniale,

Attrezzato con camino artigianale in Pietra

Zona pranzo arredata con tavolo allungabile

Angolo cottura completamente attrezzato

Bancone divisorio per uso prima colazione,

divide il soggiorno dalla cucina,

bancone di appoggio, arredato con sgabelli

Balcone collegato al soggiorno,

con Affaccio sulle Piste da Sci di Abetone

Mansarda soleggiata,

dal Balcone si gode dello sguardo su tutta la vallata di Abetone e Fiumalbo

Al Piano Mansarda Sotto Tetto Abitabile:

Scala Artigianale in Legno e Ferro,

per accesso al piano mansarda

Ballatoio con Disimpegno

Due camere Matrimoniali

Bagno con finestra Velux,

attrezzato con vasca piccola

Mansarda con Pavimentata con Parquet,

realizzato e posato a listoncini

Climatizzazione della Mansarda Trilocale

La Mansarda Trilocale Bar Alpino Due Livelli Mq 70,

è dotata di Impianto di Riscaldamento indipendente,

realizzato con una Caldaia alimentata con Gas GPL,

la quale garantisce anche la produzione dell'acqua calda sanitaria.

Il Controllo e la gestione della Temperatura interna,

dei due piani della Mansarda,

avviene tramite il termostato ambiente.

La Gestione della Temperatura interna si può regolabile anche da remoto,

con il proprio Smartphone,

tramite la App (iOS/Android) fornita dal produttore,

grazie ad una SIM Cellulare installata al suo interno,

oltremodo è possibile effettuare tale controllo, inviando dei comandi SMS,

alla Sim Cellulare Del Termostato.

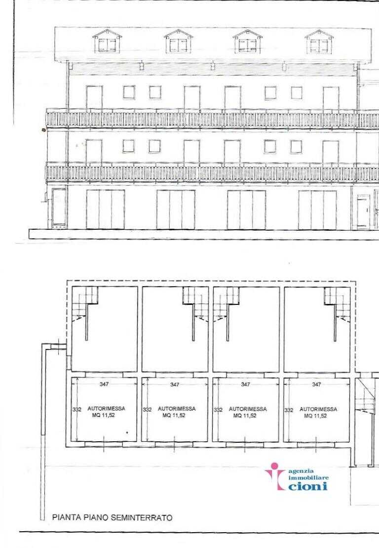
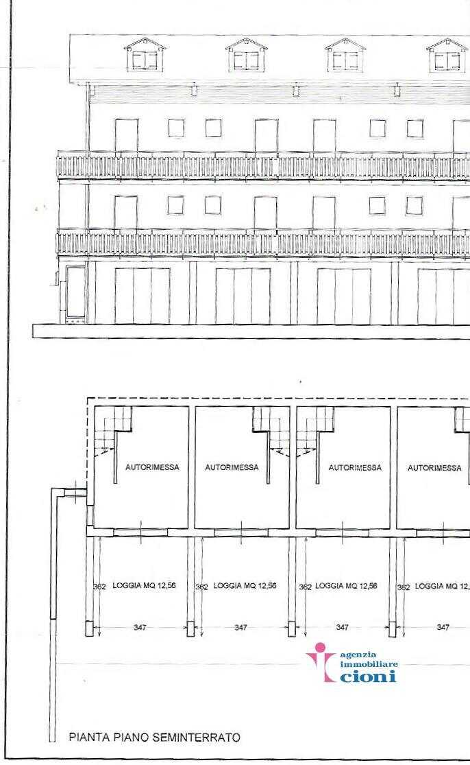
Garage e Locali Accessori della Mansarda Trilocale

La Mansarda Tre Locali Mq 70 è corredata di Due Garage singoli, di proprietà,

i quali si trovano all'interno di un più ampio Garage Comune,

ubicato al Piano Seminterrato.

I Garage sono collegati internamente al Condominio,

tramite scala interna,

dalla quale si raggiungono le Scale Coperte Esterne,

per l'accesso agli appartamenti;

La Scala pedonale collegata con i Garage,

e le scale esterne coperte,

permettono un comodo accesso all'Appartamento,

anche in caso di maltempo.

Gestione Amministrazione del Condominio della Mansarda

Le spese di condominio della Mansarda Trilocale sono quantificate in Euro 900 Annue,

e comprendono i seguenti servizi:

Spalatura neve

Pulizia scale

Illuminazione scale

Manutenzione Generale

Amministrazione Condominiale

Antenna Tv Digitale terrestre ed Antenna Satellitare (SKY Ready)

Caratteristiche

TipologiaMansarda
ContrattoVendita
Superficie70 m²
Camere2
Bagni1
Vedi tutti i dettagli

Dati principali

Indirizzo0
CAP41022
ProvinciaMO
DisponibilitàDa concordare
Riferimento interno3009

Superficie e composizione

Superficie70 m²
Camere da letto2
Bagni1

Prestazioni energetiche

Consumo energetico0

Informazioni sul prezzo

Prezzo€ 159.000
Prezzo al m²€ 2.271 /m²

Efficienza energetica

Consumo energetico0

Planimetria

Video

Foto

Mappa

Immobili correlati