Rustici Piteglio Tana-Termini Piastreto Mq 450 Due Fabbricati Garage
Descrizione
Vendita € 99.000 Rustici Piteglio Tana-Termini Piastreto Mq 450 Due Fabbricati Garage Terreno
Agenziacioni.com propone in Vendita un complesso di Rustici da ristrutturare,
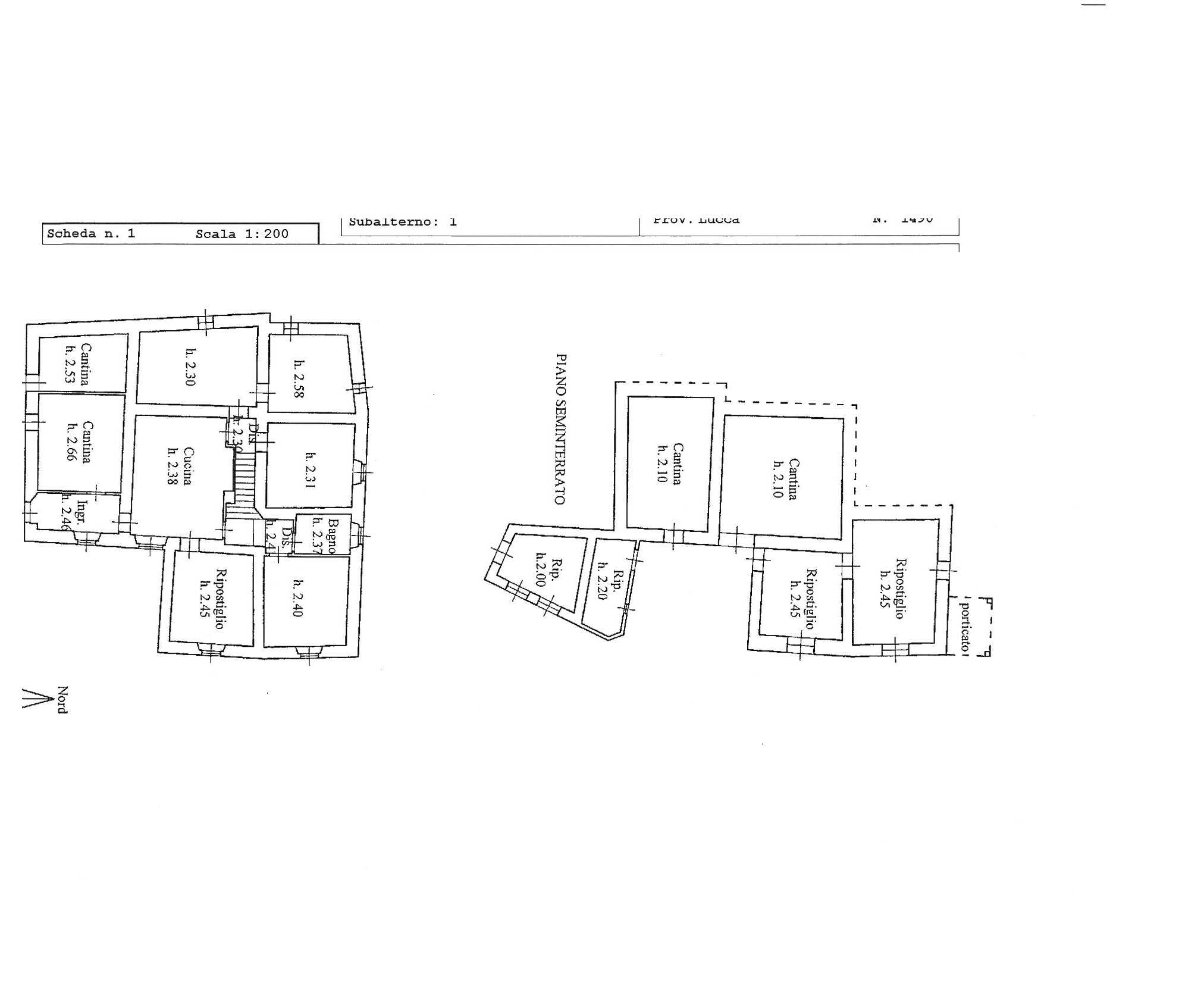
il Rustico Principale di Mq 350 è sviluppato su Tre Piani,
un secondo Rustico di Mq 75, sviluppato su un piano, staccato dal Corpo Principale,
oltre ad un Garage di Mq 30, staccato dai Due fabbricati sopra elencati,
Rustici Piteglio Tana-Termini Piastreto Mq 450 Due Fabbricati Garage Terreno;
Prezzo di Vendita Euro 99.000 Trattabile.
Bonus Economici per la Ristrutturazione dei Rustici Piastreto Tana-Termini
Per Il Gruppo di Rustici di Mq 450 Piteglio Tana Termini Piastreto,
è possibile attuare la Ristrutturazione,
utilizzando tutti i Bonus previsti dal MISE,
dove peraltro è stata verificata al fattibilità di utilizzo del
SuperBonus 110
;
Posizione dei Rustici Piastreto Tana-Termini
Il Gruppo di Rustici Mq 450 Piteglio Tana Termini Piastreto,
è ubicato in Località di
Tana Termini
(PT), ed è posto nel Comune di San Marcello Piteglio;
Il Gruppo di Rustici è posizionato sul fianco di una montagna,
con un affaccio panoramico mozzafiato, sul fiume Lima,
e sulle località storiche di Vico Pancellorum, Lucchio, Limano;
La Località Tana Termini fa parte del Comune di San Marcello Piteglio (PT),
ed è sede di numerose grotte all'interno delle quali vengono effettuate corsi di Speleo-Sub-Diving,
dove peraltro la loro storia è ben dettagliata in
questo Articolo
;
Il Gruppo di Rustici è raggiungibile percorrendo per circa 2 km,
una strada bianca ben tenuta,
deviando, in Località Tana Termini,
dalla Strada principale, la SS 12 dell'Abetone e del Brennero;
La Località di Tana Termini, si distingue per essere la sede,
di due importanti realtà lavorative ed imprenditoriali locali,
la Escavazione degli Inerti è effettuata dalle due
Ditte Storiche
,
denominate Borgognoni, presenti nella zona sin dal 1850;
La Località di Tana Termini è posta a cavallo del confine tra le due province di Pistoia e Lucca,
tra i Due comuni di Bagni di Lucca e San Marcello Piteglio;
A pochi Km dal Gruppo di Rustici, si possono raggiungere le vicine Località di:
Bagni di Lucca ed il suo centro Termale di Acqua Sorgiva Calda
A circa 3 km si trova la Località di Popiglio
a circa 6 km si giunge in Località La Lima,
importante Snodo Viario tra la SS12 dell'Abetone e del Brennero,
e la Sp 66 che collega la Città di Pistoia con le Piste da Sci di
Abetone
Il Rustico è posizionato a 2 km dalla Strada SS 12 dell'Abetone e del Brennero
Caratteristiche Generali dei Rustici Piastreto
Il Gruppo di Rustici da ristrutturare è composto da Tre Immobili,
il Corpo principale ha una superficie di Mq 350,
è sviluppato su Tre livelli;
Il secondo Immobile è caratterizzato da un Rustico piu piccolo, di Mq 75,
adibito come Annesso terratetto, sviluppato su due Livelli;
a Fianco del Rustico piu piccolo si trova un Garage di Mq 30;
Il Gruppo di Rustici è contornato da una Porzione di terreno di Mq 1.500,
utilizzabile in parte come Giardino,
oltre all'annesso Bosco di Castagni,
sviluppato su una superficie di mq 3.500;
Il Garage è collegato con il Rustico Terra-Tetto piu piccolo.


